Blind Flange Sizes (ASME B16.5)
ASME Blind Flange Dimensions and Weights
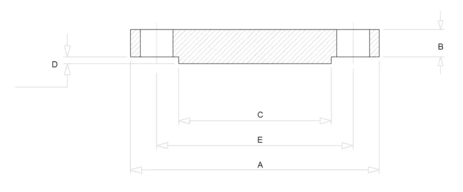
The tables below show ASME B16.5 blind flange dimensions including: outside diameter (OD), raised face diameter, flange thickness, bolt holes (number, diameter, pitch circle), and approximate weight in pounds and kilograms.
ASME B15.6 blind flange
Blind Flanges Sizes in Inches
Blind Class 150 (FF, RF)

| NPS | ODA | Diameter of Raised FaceB | Thickness of FlangeC | Number of Bolt HolesNBH | Diameter of Bolt HolesDBH | Bolt Circle DiameterP | Approx Weight(lb)AW |
|---|---|---|---|---|---|---|---|
| 1/2 | 3 1/2 | 1 3/8 | 7/16 | 4 | 5/8 | 2 3/8 | 2 |
| 3/4 | 3 7/8 | 1 11/16 | 1/2 | 4 | 5/8 | 2 3/4 | 2 |
| 1 | 4 1/4 | 2 | 9/16 | 4 | 5/8 | 3 1/8 | 2 |
| 1 1/4 | 4 5/8 | 2 1/2 | 5/8 | 4 | 5/8 | 3 1/2 | 2 |
| 1 1/2 | 5 | 2 7/8 | 11/16 | 4 | 5/8 | 3 7/8 | 3 |
| 2 | 6 | 3 5/8 | 3/4 | 4 | 3/4 | 4 3/4 | 3 |
| 2 1/2 | 7 | 4 1/8 | 7/8 | 4 | 3/4 | 5 1/2 | 7 |
| 3 | 7 1/2 | 5 | 15/16 | 4 | 3/4 | 6 | 9 |
| 3 1/2 | 8 1/2 | 5 1/2 | 15/16 | 8 | 3/4 | 7 | 13 |
| 4 | 9 | 6 3/16 | 15/16 | 8 | 3/4 | 7 1/2 | 17 |
| 5 | 10 | 7 5/16 | 15/16 | 8 | 7/8 | 8 1/2 | 20 |
| 6 | 11 | 8 1/2 | 1 | 8 | 7/8 | 9 1/2 | 26 |
| 8 | 13 1/2 | 10 5/8 | 1 1/8 | 8 | 7/8 | 11 3/4 | 45 |
| 10 | 16 | 12 3/4 | 1 3/16 | 12 | 1 | 14 1/4 | 70 |
| 12 | 19 | 15 | 1 1/4 | 12 | 1 | 17 | 110 |
| 14 | 21 | 16 1/4 | 1 3/8 | 12 | 1 1/8 | 18 3/4 | 131 |
| 16 | 23 1/2 | 18 1/2 | 1 7/16 | 16 | 1 1/8 | 21 1/4 | 170 |
| 18 | 25 | 21 | 1 9/16 | 16 | 1 1/4 | 22 3/4 | 209 |
| 20 | 27 1/2 | 23 | 1 11/16 | 20 | 1 1/4 | 25 | 272 |
| 22 | 29 1/2 | 25 1/4 | 1 13/16 | 20 | 1 3/8 | 27 1/4 | 333 |
| 24 | 32 | 27 1/4 | 1 7/8 | 20 | 1 3/8 | 29 1/2 | 411 |
Blind Class 300 (FF, RF)

| NPS | ODA | Diameter of Raised FaceB | Thickness of FlangeC | Number of Bolt Holes NBH | Diameter of Bolt HolesDBH | Bolt Circle DiameterP | Approx Weight(lb)AW |
|---|---|---|---|---|---|---|---|
| 1/2 | 3 3/4 | 1 3/8 | 9/16 | 4 | 5/8 | 2 5/8 | 2 |
| 3/4 | 4 5/8 | 1 11/16 | 5/8 | 4 | 3/4 | 3 1/4 | 3 |
| 1 | 4 7/8 | 2 | 11/16 | 4 | 3/4 | 3 1/2 | 4 |
| 1 1/4 | 5 1/4 | 2 1/2 | 3/4 | 4 | 3/4 | 3 7/8 | 6 |
| 1 1/2 | 6 1/8 | 2 7/8 | 13/16 | 4 | 7/8 | 4 1/2 | 7 |
| 2 | 6 1/2 | 3 5/8 | 7/8 | 8 | 3/4 | 5 | 8 |
| 2 1/2 | 7 1/2 | 4 1/8 | 1 | 8 | 7/8 | 5 7/8 | 12 |
| 3 | 8 1/4 | 5 | 1 1/8 | 8 | 7/8 | 6 5/8 | 16 |
| 3 1/2 | 9 | 5 1/2 | 1 3/16 | 8 | 7/8 | 7 1/4 | 21 |
| 4 | 10 | 6 3/16 | 1 1/4 | 8 | 7/8 | 7 7/8 | 27 |
| 5 | 11 | 7 5/16 | 1 3/8 | 8 | 7/8 | 9 1/4 | 35 |
| 6 | 12 1/2 | 8 1/2 | 1 7/16 | 12 | 7/8 | 10 5/8 | 50 |
| 8 | 15 | 10 5/8 | 1 5/8 | 12 | 1 | 13 | 81 |
| 10 | 17 1/2 | 12 3/4 | 1 7/8 | 16 | 1 1/8 | 15 1/4 | 127 |
| 12 | 20 1/2 | 15 | 2 | 16 | 1 1/4 | 17 3/4 | 184 |
| 14 | 23 | 16 1/4 | 2 1/8 | 20 | 1 1/4 | 20 1/4 | 235 |
| 16 | 25 1/2 | 18 1/2 | 2 1/4 | 20 | 1 3/8 | 22 1/2 | 307 |
| 18 | 28 | 21 | 2 3/8 | 24 | 1 3/8 | 24 3/4 | 390 |
| 20 | 30 1/2 | 23 | 2 1/2 | 24 | 1 3/8 | 27 | 492 |
| 22 | 33 | 25 1/4 | 2 5/8 | 24 | 1 5/8 | 29 1/4 | 594 |
| 24 | 36 | 27 1/4 | 2 3/4 | 24 | 1 5/8 | 32 | 754 |
Blind Class 400 (FF, RF)

| NPS | ODA | Diameter of Raised FaceB | Thickness of FlangeC | Number of Bolt HolesNBH | Diameter of Bolt HolesDBH | Bolt Circle DiameterP | Approx Weight(lb)AW |
|---|---|---|---|---|---|---|---|
| 1/2 | 3 3/4 | 1 3/8 | 9/16 | 4 | 5/8 | 2 5/8 | 2 |
| 3/4 | 4 5/8 | 1 11/16 | 5/8 | 4 | 3/4 | 3 1/4 | 3 |
| 1 | 4 7/8 | 2 | 11/16 | 4 | 3/4 | 3 1/2 | 4 |
| 1 1/4 | 5 1/4 | 2 1/2 | 13/16 | 4 | 3/4 | 3 7/8 | 6 |
| 1 1/2 | 6 1/8 | 2 7/8 | 7/8 | 4 | 7/8 | 4 1/2 | 8 |
| 2 | 6 1/2 | 3 5/8 | 1 | 8 | 3/4 | 5 | 10 |
| 2 1/2 | 7 1/2 | 4 1/8 | 1 1/8 | 8 | 7/8 | 5 7/8 | 15 |
| 3 | 8 1/4 | 5 | 1 1/4 | 8 | 7/8 | 6 5/8 | 20 |
| 3 1/2 | 9 | 5 1/2 | 1 3/8 | 8 | 1 | 7 1/4 | 29 |
| 4 | 10 | 6 3/16 | 1 3/8 | 8 | 1 | 7 7/8 | 33 |
| 5 | 11 | 7 5/16 | 1 1/2 | 8 | 1 | 9 1/4 | 44 |
| 6 | 12 1/2 | 8 1/2 | 1 5/8 | 12 | 1 | 10 5/8 | 61 |
| 8 | 15 | 10 5/8 | 1 7/8 | 12 | 1 1/8 | 13 | 100 |
| 10 | 17 1/2 | 12 3/4 | 2 1/8 | 16 | 1 1/4 | 15 1/4 | 155 |
| 12 | 20 1/2 | 15 | 2 1/4 | 16 | 1 3/8 | 17 3/4 | 226 |
| 14 | 23 | 16 1/4 | 2 3/8 | 20 | 1 3/8 | 20 1/4 | 310 |
| 16 | 25 1/2 | 18 1/2 | 2 1/2 | 20 | 1 1/2 | 22 1/2 | 398 |
| 18 | 28 | 21 | 2 5/8 | 24 | 1 1/2 | 24 3/4 | 502 |
| 20 | 30 1/2 | 23 | 2 3/4 | 24 | 1 5/8 | 27 | 621 |
| 22 | 33 | 25 1/4 | 2 7/8 | 24 | 1 3/4 | 29 1/4 | 685 |
| 24 | 36 | 27 1/4 | 3 | 24 | 1 7/8 | 32 | 936 |
Blind Class 600 (FF, RF)

| NPS | ODA | Diameter of Raised FaceB | Thickness of FlangeC | Number of Bolt HolesNBH | Diameter of Bolt HolesDBH | Bolt Circle DiameterP | Approx. Weight(lb)AW |
|---|---|---|---|---|---|---|---|
| 1/2 | 3 3/4 | 1 3/8 | 9/16 | 4 | 5/8 | 2 5/8 | 3 |
| 3/4 | 4 5/8 | 1 11/16 | 5/8 | 4 | 3/4 | 3 1/4 | 4 |
| 1 | 4 7/8 | 2 | 11/16 | 4 | 3/4 | 3 1/2 | 4 |
| 1 1/4 | 5 1/4 | 2 1/2 | 13/16 | 4 | 3/4 | 3 7/8 | 6 |
| 1 1/2 | 6 1/8 | 2 7/8 | 7/8 | 4 | 7/8 | 4 1/2 | 8 |
| 2 | 6 1/2 | 3 5/8 | 1 | 8 | 3/4 | 5 | 10 |
| 2 1/2 | 7 1/2 | 4 1/8 | 1 1/8 | 8 | 7/8 | 5 7/8 | 15 |
| 3 | 8 1/4 | 5 | 1 1/4 | 8 | 7/8 | 6 5/8 | 20 |
| 3 1/2 | 9 | 5 1/2 | 1 3/8 | 8 | 1 | 7 1/4 | 29 |
| 4 | 10 3/4 | 6 3/16 | 1 1/2 | 8 | 1 | 8 1/2 | 41 |
| 5 | 13 | 7 5/16 | 1 3/4 | 8 | 1 1/8 | 10 1/2 | 68 |
| 6 | 14 | 8 1/2 | 1 7/8 | 12 | 1 1/8 | 11 1/2 | 86 |
| 8 | 16 1/2 | 10 5/8 | 2 3/16 | 12 | 1 1/4 | 13 3/4 | 140 |
| 10 | 20 | 12 3/4 | 2 1/2 | 16 | 1 3/8 | 17 | 321 |
| 12 | 22 | 15 | 2 5/8 | 20 | 1 3/8 | 19 1/4 | 295 |
| 14 | 23 3/4 | 16 1/4 | 2 3/4 | 20 | 1 1/2 | 20 3/4 | 378 |
| 16 | 27 | 18 1/2 | 3 | 20 | 1 5/8 | 23 3/4 | 527 |
| 18 | 29 1/4 | 21 | 3 1/4 | 20 | 1 3/4 | 25 3/4 | 665 |
| 20 | 32 | 23 | 3 1/2 | 24 | 1 3/4 | 28 1/2 | 855 |
| 22 | 34 1/4 | 25 1/4 | 3 3/4 | 24 | 1 7/8 | 30 5/8 | 1000 |
| 24 | 37 | 27 1/4 | 4 | 24 | 2 | 33 | 1250 |
Blind Class 900 (FF, RF)

| NPS | ODA | Diameter of Raised FaceB | Thickness of FlangeC | Number of Bolt HolesNBH | Diameter of Bolt Holes DBH | Bolt Circle DiameterP | Approx. Weight(lb)AW |
|---|---|---|---|---|---|---|---|
| 1/2 | 4 3/4 | 1 3/8 | 7/8 | 4 | 7/8 | 3 1/4 | 4 |
| 3/4 | 5 1/8 | 1 11/16 | 1 | 4 | 7/8 | 3 1/2 | 6 |
| 1 | 5 7/8 | 2 | 1 1/8 | 4 | 1 | 4 | 9 |
| 1 1/4 | 6 1/4 | 2 1/2 | 1 1/8 | 4 | 1 | 4 3/8 | 10 |
| 1 1/2 | 7 | 2 7/8 | 1 1/4 | 4 | 1 1/8 | 4 7/8 | 14 |
| 2 | 8 1/2 | 3 5/8 | 1 1/2 | 8 | 1 | 6 1/2 | 25 |
| 2 1/2 | 9 5/8 | 4 1/8 | 1 5/8 | 8 | 1 1/8 | 7 1/2 | 32 |
| 3 | 9 1/2 | 5 | 1 1/2 | 8 | 1 | 7 1/2 | 35 |
| 3 1/2 | - | - | - | - | - | - | - |
| 4 | 11 1/2 | 6 3/16 | 1 3/4 | 8 | 1 1/4 | 9 1/4 | 54 |
| 5 | 13 3/4 | 7 5/16 | 2 | 8 | 1 3/8 | 11 | 87 |
| 6 | 15 | 8 1/2 | 2 3/16 | 12 | 1 1/4 | 12 1/2 | 115 |
| 8 | 18 1/2 | 10 5/8 | 2 1/2 | 12 | 1 1/2 | 15 1/2 | 200 |
| 10 | 21 1/2 | 12 3/4 | 2 3/4 | 16 | 1 1/2 | 18 1/2 | 290 |
| 12 | 24 | 15 | 3 1/8 | 20 | 1 1/2 | 21 | 415 |
| 14 | 25 1/4 | 16 1/4 | 3 3/8 | 20 | 1 5/8 | 22 | 520 |
| 16 | 27 3/4 | 18 1/2 | 3 1/2 | 20 | 1 3/4 | 24 1/4 | 619 |
| 18 | 31 | 21 | 4 | 20 | 2 | 27 | 880 |
| 20 | 33 3/4 | 23 | 4 1/4 | 20 | 2 1/8 | 29 1/2 | 1107 |
| 22 | - | - | - | - | - | - | - |
| 24 | 41 | 27 1/4 | 5 1/2 | 20 | 2 5/8 | 35 1/2 | 2099 |
Blind Class 1500 (FF, RF)

| NPS | ODA | Diameter of Raised FaceB | Thickness of FlangeC | Number of Bolt HolesNBH | Diameter of Bolt Holes DBH | Bolt Circle DiameterP | Approx Weight(lb)AW |
|---|---|---|---|---|---|---|---|
| 1/2 | 4 3/4 | 1 3/8 | 7/8 | 4 | 7/8 | 3 1/4 | 4 |
| 3/4 | 5 1/8 | 1 11/16 | 1 | 4 | 7/8 | 3 1/2 | 6 |
| 1 | 5 7/8 | 2 | 1 1/8 | 4 | 1 | 4 | 9 |
| 1 1/4 | 6 1/4 | 2 1/2 | 1 1/8 | 4 | 1 | 4 3/8 | 10 |
| 1 1/2 | 7 | 2 7/8 | 1 1/4 | 4 | 1 1/8 | 4 7/8 | 14 |
| 2 | 8 1/2 | 3 5/8 | 1 1/2 | 8 | 1 | 6 1/2 | 25 |
| 2 1/2 | 9 5/8 | 4 1/8 | 1 5/8 | 8 | 1 1/8 | 7 1/2 | 35 |
| 3 | 10 1/2 | 5 | 1 7/8 | 8 | 1 1/4 | 8 | 48 |
| 3 1/2 | - | - | - | - | - | - | - |
| 4 | 12 1/4 | 6 3/16 | 2 1/8 | 8 | 1 3/8 | 9 1/2 | 73 |
| 5 | 14 3/4 | 7 5/16 | 2 7/8 | 8 | 1 5/8 | 11 1/2 | 142 |
| 6 | 15 1/2 | 8 1/2 | 3 1/4 | 12 | 1 1/2 | 12 1/2 | 159 |
| 8 | 19 | 10 5/8 | 3 5/8 | 12 | 1 3/4 | 15 1/2 | 302 |
| 10 | 23 | 12 3/4 | 4 1/4 | 12 | 2 | 19 | 507 |
| 12 | 26 1/2 | 15 | 4 7/8 | 16 | 2 1/8 | 22 1/2 | 775 |
| 14 | 29 1/2 | 16 1/4 | 5 1/4 | 16 | 2 3/8 | 25 | 975 |
| 16 | 32 1/2 | 18 1/2 | 5 3/4 | 16 | 2 5/8 | 27 3/4 | 1300 |
| 18 | 36 | 21 | 6 3/8 | 16 | 2 7/8 | 30 1/2 | 1750 |
| 20 | 38 3/4 | 23 | 7 | 16 | 3 1/8 | 32 3/4 | 2225 |
| 22 | - | - | - | - | - | - | - |
| 24 | 46 | 27 1/4 | 8 | 16 | 3 5/8 | 39 | 3625 |
Blind Class 2500 (FF, RF)

| NPS | ODA | Diameter of Raised FaceB | Thickness of FlangeC | Number of Bolt HolesNBH | Diameter of Bolt HolesDBH | Bolt Circle DiameterP | Approx Weight(lb)AW |
|---|---|---|---|---|---|---|---|
| 1/2 | 5 1/4 | 1 3/8 | 1 3/16 | 4 | 7/8 | 3 1/2 | 7 |
| 3/4 | 5 1/2 | 1 11/16 | 1 1/4 | 4 | 7/8 | 3 3/4 | 10 |
| 1 | 6 1/4 | 2 | 1 3/8 | 4 | 1 | 4 1/4 | 12 |
| 1 1/4 | 7 1/4 | 2 1/2 | 1 1/2 | 4 | 1 1/8 | 5 1/8 | 18 |
| 1 1/2 | 8 | 2 7/8 | 1 3/4 | 4 | 1 1/4 | 5 3/4 | 25 |
| 2 | 9 1/4 | 3 5/8 | 2 | 8 | 1 1/8 | 6 3/4 | 39 |
| 2 1/2 | 10 1/2 | 4 1/8 | 2 1/4 | 8 | 1 1/4 | 7 3/4 | 56 |
| 3 | 12 | 5 | 2 5/8 | 8 | 1 3/8 | 9 | 86 |
| 3 1/2 | - | - | - | - | - | - | - |
| 4 | 14 | 6 3/16 | 3 | 8 | 1 5/8 | 10 3/4 | 133 |
| 5 | 16 1/2 | 7 5/16 | 3 5/8 | 8 | 1 7/8 | 12 3/4 | 223 |
| 6 | 19 | 8 1/2 | 4 1/4 | 8 | 2 1/8 | 14 1/2 | 345 |
| 8 | 21 3/4 | 10 5/8 | 5 | 12 | 2 1/8 | 17 1/4 | 533 |
| 10 | 26 1/2 | 12 3/4 | 6 1/2 | 12 | 2 5/8 | 21 1/4 | 1025 |
| 12 | 30 | 15 | 7 1/4 | 12 | 2 7/8 | 24 3/8 | 1464 |
Blind Flanges Sizes in Millimeters
Blind Class 150 (FF, RF)
ASME blind flange sizes
| NPS | DN | OD | Thk | RF Diam. | RF Height | PCD | Bolts# | Bolt SizeUNC | Machine BoltLength | RF StudLength | HoleSize | Metric Stud | Weightin kg |
|---|---|---|---|---|---|---|---|---|---|---|---|---|---|
| A | B | C | D | E | |||||||||
| 1/2 | 15 | 90 | 9.6 | 34.9 | 2 | 60.3 | 4 | 1/2 | 50 | 55 | 5/8 | M14 | 0.9 |
| 3/4 | 20 | 100 | 11.2 | 42.9 | 2 | 69.9 | 4 | 1/2 | 50 | 65 | 5/8 | M14 | 0.9 |
| 1 | 25 | 110 | 12.7 | 50.8 | 2 | 79.4 | 4 | 1/2 | 55 | 65 | 5/8 | M14 | 0.9 |
| 1 1/4 | 32 | 115 | 14.3 | 63.5 | 2 | 88.9 | 4 | 1/2 | 55 | 70 | 5/8 | M14 | 1.4 |
| 1 1/2 | 40 | 125 | 15.9 | 73 | 2 | 98.4 | 4 | 1/2 | 65 | 70 | 5/8 | M14 | 1.8 |
| 2 | 50 | 150 | 17.5 | 92.1 | 2 | 120.7 | 4 | 5/8 | 70 | 85 | 3/4 | M16 | 2.3 |
| 2 1/2 | 65 | 180 | 20.7 | 104.8 | 2 | 139.7 | 4 | 5/8 | 75 | 90 | 3/4 | M16 | 3.2 |
| 3 | 80 | 190 | 22.3 | 127 | 2 | 152.4 | 4 | 5/8 | 75 | 90 | 3/4 | M16 | 4.1 |
| 3 1/2 | 90 | 215 | 22.3 | 139.7 | 2 | 177.8 | 8 | 5/8 | 75 | 90 | 3/4 | M16 | 5.9 |
| 4 | 100 | 230 | 22.3 | 157.2 | 2 | 190.5 | 8 | 5/8 | 75 | 90 | 3/4 | M16 | 7.7 |
| 5 | 125 | 255 | 22.3 | 185.7 | 2 | 215.9 | 8 | 3/4 | 85 | 95 | 7/8 | M20 | 9.1 |
| 6 | 150 | 280 | 23.9 | 215.9 | 2 | 241.3 | 8 | 3/4 | 85 | 100 | 7/8 | M20 | 11.8 |
| 8 | 200 | 345 | 27 | 269.9 | 2 | 298.5 | 8 | 3/4 | 90 | 110 | 7/8 | M20 | 20.5 |
| 10 | 250 | 405 | 28.6 | 323.8 | 2 | 362 | 12 | 7/8 | 100 | 115 | 1 | M24 | 32 |
| 12 | 300 | 485 | 30.2 | 381 | 2 | 431.8 | 12 | 7/8 | 100 | 120 | 1 | M24 | 50 |
| 14 | 350 | 535 | 33.4 | 412.8 | 2 | 476.3 | 12 | 1 | 115 | 135 | 1 1/8 | M27 | 64 |
| 16 | 400 | 595 | 35 | 469.9 | 2 | 539.8 | 16 | 1 | 115 | 135 | 1 1/8 | M27 | 82 |
| 18 | 450 | 635 | 38.1 | 533.4 | 2 | 577.9 | 16 | 1 1/8 | 125 | 145 | 1 1/4 | M30 | 100 |
| 20 | 500 | 700 | 41.3 | 584.2 | 2 | 635 | 20 | 1 1/8 | 140 | 160 | 1 1/4 | M30 | 130 |
| 24 | 600 | 815 | 46.1 | 692.2 | 2 | 749.3 | 20 | 1 1/4 | 150 | 170 | 1 3/8 | M33 | 196 |
Blind Class 300 (FF, RF)

| NPS | DN | OD | Thk | RF Diam. | RFHeight | PCD | Bolts# | Bolt SizeUNC | Machine BoltLength | RF StudLength | HoleSize | Metric Stud | Weightin kg |
|---|---|---|---|---|---|---|---|---|---|---|---|---|---|
| A | B | C | D | E | |||||||||
| 1/2 | 15 | 95 | 12.7 | 34.9 | 2 | 66.7 | 4 | 1/2 | 55 | 65 | 5/8 | M14 | 1.4 |
| 3/4 | 20 | 115 | 14.3 | 42.9 | 2 | 82.6 | 4 | 5/8 | 65 | 75 | 3/4 | M16 | 1.4 |
| 1 | 25 | 125 | 15.9 | 50.8 | 2 | 88.9 | 4 | 5/8 | 65 | 75 | 3/4 | M16 | 1.4 |
| 1 1/4 | 32 | 135 | 17.5 | 63.5 | 2 | 98.4 | 4 | 5/8 | 70 | 85 | 3/4 | M16 | 1.8 |
| 1 1/2 | 40 | 155 | 19.1 | 73 | 2 | 114.3 | 4 | 3/4 | 75 | 90 | 7/8 | M20 | 2.7 |
| 2 | 50 | 165 | 20.7 | 92.1 | 2 | 127 | 8 | 5/8 | 75 | 90 | 3/4 | M16 | 3.7 |
| 2 1/2 | 65 | 190 | 23.9 | 104.8 | 2 | 149.2 | 8 | 3/4 | 85 | 100 | 7/8 | M20 | 5.5 |
| 3 | 80 | 210 | 27 | 127 | 2 | 168.3 | 8 | 3/4 | 90 | 110 | 7/8 | M20 | 7.3 |
| 3 1/2 | 90 | 230 | 28.6 | 139.7 | 2 | 184.2 | 8 | 3/4 | 95 | 110 | 7/8 | M20 | 9.6 |
| 4 | 100 | 255 | 30.2 | 157.2 | 2 | 200 | 8 | 3/4 | 95 | 115 | 7/8 | M20 | 12.3 |
| 5 | 125 | 280 | 33.4 | 185.7 | 2 | 235 | 8 | 3/4 | 110 | 120 | 7/8 | M20 | 15.9 |
| 6 | 150 | 320 | 35 | 215.9 | 2 | 269.9 | 12 | 3/4 | 110 | 120 | 7/8 | M20 | 22.7 |
| 8 | 200 | 380 | 39.7 | 269.9 | 2 | 330.2 | 12 | 7/8 | 120 | 140 | 1 | M24 | 36 |
| 10 | 250 | 445 | 46.1 | 323.8 | 2 | 387.4 | 16 | 1 | 140 | 160 | 1 1/8 | M27 | 57 |
| 12 | 300 | 520 | 49.3 | 381 | 2 | 450.8 | 16 | 1 1/8 | 145 | 170 | 1 1/4 | M30 | 84 |
| 14 | 350 | 585 | 52.4 | 412.8 | 2 | 514.4 | 20 | 1 1/8 | 160 | 180 | 1 1/4 | M30 | 113 |
| 16 | 400 | 650 | 55.6 | 469.9 | 2 | 571.5 | 20 | 1 1/4 | 165 | 190 | 1 3/8 | M33 | 134 |
| 18 | 450 | 710 | 58.8 | 533.4 | 2 | 628.6 | 24 | 1 1/4 | 170 | 195 | 1 3/8 | M33 | 181 |
| 20 | 500 | 775 | 62 | 584.2 | 2 | 685.8 | 24 | 1 1/4 | 185 | 205 | 1 3/8 | M33 | 230 |
| 24 | 600 | 915 | 68.3 | 692.2 | 2 | 812.8 | 24 | 1 1/2 | 205 | 230 | 1 5/8 | M39 |
Blind Class 400 (FF, RF)

| NPS | DN | OD | Thk | RF Diam. | RFHeight | PCD | Bolts# | Bolt SizeUNC | RF StudLength | HoleSize | Metric Stud | Weightin kg |
|---|---|---|---|---|---|---|---|---|---|---|---|---|
| A | B | C | D | E | ||||||||
| 1/2 | 15 | 95 | 14.3 | 34.9 | 7 | 66.7 | 4 | 1/2 | 75 | 5/8 | M14 | 1.5 |
| 3/4 | 20 | 115 | 15.9 | 42.9 | 7 | 82.6 | 4 | 5/8 | 90 | 3/4 | M16 | 1.5 |
| 1 | 25 | 125 | 17.5 | 50.8 | 7 | 88.9 | 4 | 5/8 | 90 | 3/4 | M16 | 1.8 |
| 1 1/4 | 32 | 135 | 20.7 | 63.5 | 7 | 98.4 | 4 | 5/8 | 95 | 3/4 | M16 | 2.3 |
| 1 1/2 | 40 | 155 | 22.3 | 73 | 7 | 114.3 | 4 | 3/4 | 110 | 7/8 | M20 | 3.7 |
| 2 | 50 | 165 | 25.4 | 92.1 | 7 | 127 | 8 | 5/8 | 110 | 3/4 | M16 | 4.6 |
| 2 1/2 | 65 | 190 | 28.6 | 104.8 | 7 | 149.2 | 8 | 3/4 | 120 | 7/8 | M20 | 6.8 |
| 3 | 80 | 210 | 31.8 | 127 | 7 | 168.3 | 8 | 3/4 | 125 | 7/8 | M20 | 9.1 |
| 3 1/2 | 90 | 230 | 35 | N/A | 7 | 184.2 | 8 | 7/8 | 140 | 1 | M24 | 13.2 |
| 4 | 100 | 255 | 35 | 157.2 | 7 | 200 | 8 | 7/8 | 140 | 1 | M24 | 15 |
| 5 | 125 | 280 | 38.1 | 185.7 | 7 | 235 | 8 | 7/8 | 145 | 1 | M24 | 20 |
| 6 | 150 | 320 | 41.3 | 215.9 | 7 | 269.9 | 12 | 7/8 | 150 | 1 | M24 | 28 |
| 8 | 200 | 380 | 47.7 | 269.9 | 7 | 330 | 12 | 1 | 170 | 1 1/8 | M27 | 46 |
| 10 | 250 | 445 | 54 | 323.8 | 7 | 387.4 | 16 | 1 1/8 | 190 | 1 1/4 | M30 | 71 |
| 12 | 300 | 520 | 57.2 | 381 | 7 | 450.8 | 16 | 1 1/4 | 205 | 1 3/8 | M33 | 102 |
| 14 | 350 | 585 | 60.4 | 412.8 | 7 | 514.4 | 20 | 1 1/4 | 210 | 1 3/8 | M33 | 132 |
| 16 | 400 | 650 | 63.5 | 469.9 | 7 | 571.5 | 20 | 1 3/8 | 220 | 1 1/2 | M36 | 168 |
| 18 | 450 | 710 | 66.7 | 533.4 | 7 | 628.6 | 24 | 1 3/8 | 230 | 1 1/2 | M36 | 207 |
| 20 | 500 | 775 | 69.9 | 584.2 | 7 | 685.8 | 24 | 1 1/2 | 240 | 1 3/4 | M39 | 266 |
| 24 | 600 | 915 | 76.2 | 692.2 | 7 | 812.8 | 24 | 1 3/4 | 265 | 1 7/8 | M45 | 405 |
Blind Class 400 (FF, RF)

| NPS | DN | OD | Thk | RF Diam. | RF Height | PCD | Bolts# | Bolt Size UNC | RF Stud Length | Hole Size | Metric Stud | Weight in kg |
|---|---|---|---|---|---|---|---|---|---|---|---|---|
| A | B | C | D | E | ||||||||
| 1/2 | 15 | 95 | 14.3 | 34.9 | 7 | 66.7 | 4 | 1/2 | 75 | 5/8 | M14 | 1.4 |
| 3/4 | 20 | 115 | 15.9 | 42.9 | 7 | 82.6 | 4 | 5/8 | 90 | 3/4 | M16 | 1.4 |
| 1 | 25 | 125 | 17.5 | 50.8 | 7 | 88.9 | 4 | 5/8 | 90 | 3/4 | M16 | 1.8 |
| 1 1/4 | 32 | 135 | 20.7 | 63.5 | 7 | 98.4 | 4 | 5/8 | 95 | 3/4 | M16 | 2.3 |
| 1 1/2 | 40 | 155 | 22.3 | 73 | 7 | 114.3 | 4 | 3/4 | 110 | 7/8 | M20 | 3.7 |
| 2 | 50 | 165 | 25.4 | 92.1 | 7 | 127 | 8 | 5/8 | 110 | 3/4 | M16 | 4.6 |
| 2 1/2 | 65 | 190 | 28.6 | 104.8 | 7 | 149.2 | 8 | 3/4 | 120 | 7/8 | M20 | 6.8 |
| 3 | 80 | 210 | 31.8 | 127 | 7 | 168.3 | 8 | 3/4 | 125 | 7/8 | M20 | 9.1 |
| 3 1/2 | 90 | 230 | 35 | N/A | 7 | 184.2 | 8 | 7/8 | 140 | 1 | M24 | 13.2 |
| 4 | 100 | 275 | 38.1 | 157.2 | 7 | 215.9 | 8 | 7/8 | 145 | 1 | M24 | 18.7 |
| 5 | 125 | 330 | 44.5 | 185.7 | 7 | 266.7 | 8 | 1 | 165 | 1 1/8 | M27 | 31 |
| 6 | 150 | 355 | 47.7 | 215.9 | 7 | 292.1 | 12 | 1 | 170 | 1 1/8 | M27 | 39 |
| 8 | 200 | 420 | 55.6 | 269.9 | 7 | 349.2 | 12 | 1 1/8 | 190 | 1 1/4 | M30 | 64 |
| 10 | 250 | 510 | 63.5 | 323.8 | 7 | 431.8 | 16 | 1 1/4 | 215 | 1 3/8 | M33 | 105 |
| 12 | 300 | 560 | 66.7 | 381 | 7 | 489 | 20 | 1 1/4 | 220 | 1 3/8 | M33 | 134 |
| 14 | 350 | 605 | 69.9 | 412.8 | 7 | 527 | 20 | 1 3/8 | 235 | 1 1/2 | M36 | 161 |
| 16 | 400 | 685 | 76.2 | 469.9 | 7 | 603.2 | 20 | 1 1/2 | 255 | 1 5/8 | M39 | 225 |
| 18 | 450 | 745 | 82.6 | 533.4 | 7 | 654 | 20 | 1 5/8 | 275 | 1 3/4 | M42 | 286 |
| 20 | 500 | 815 | 88.9 | 584.2 | 7 | 723.9 | 24 | 1 5/8 | 285 | 1 3/4 | M42 | 368 |
| 24 | 600 | 940 | 101.6 | 692.2 | 7 | 838.2 | 24 | 1 7/8 | 330 | 2 | M48 | 568 |
Blind Class 900 (FF, RF)

| NPS | DN | OD | Thk | RF Diam. | RF Height | PCD | Bolts# | Bolt Size UNC | RF Stud Length | Hole Size | Metric Stud | Weight in kg |
|---|---|---|---|---|---|---|---|---|---|---|---|---|
| A | B | C | D | E | ||||||||
| 1/2 | 15 | 120 | 22.3 | 34.9 | 7 | 82.6 | 4 | 3/4 | 110 | 7/8 | M20 | 1.8 |
| 3/4 | 20 | 130 | 25.4 | 42.9 | 7 | 88.9 | 4 | 3/4 | 115 | 7/8 | M20 | 2.7 |
| 1 | 25 | 150 | 28.6 | 50.8 | 7 | 101.6 | 4 | 7/8 | 125 | 1 | M24 | 3.6 |
| 1 1/4 | 32 | 160 | 28.6 | 63.5 | 7 | 111.1 | 4 | 7/8 | 125 | 1 | M24 | 4.1 |
| 1 1/2 | 40 | 180 | 31.8 | 73 | 7 | 123.8 | 4 | 1 | 140 | 1 1/8 | M27 | 5.9 |
| 2 | 50 | 215 | 38.1 | 92.1 | 7 | 165.1 | 8 | 7/8 | 145 | 1 | M24 | 10.1 |
| 2 1/2 | 65 | 245 | 41.3 | 104.8 | 7 | 190.5 | 8 | 1 | 160 | 1 1/8 | M27 | 16 |
| 3 | 80 | 240 | 38.1 | 127 | 7 | 190.5 | 8 | 7/8 | 145 | 1 | M24 | 13 |
| 4 | 100 | 290 | 44.5 | 157.2 | 7 | 235 | 8 | 1 1/8 | 170 | 1 1/4 | M30 | 24.5 |
| 5 | 125 | 350 | 50.8 | 185.7 | 7 | 279.4 | 8 | 1 1/4 | 190 | 1 3/8 | M33 | 39.5 |
| 6 | 150 | 380 | 55.6 | 215.9 | 7 | 317.5 | 12 | 1 1/8 | 190 | 1 1/4 | M30 | 53 |
| 8 | 200 | 470 | 63.5 | 269.9 | 7 | 393.7 | 12 | 1 3/8 | 220 | 1 1/2 | M36 | 91 |
| 10 | 250 | 545 | 69.9 | 323.8 | 7 | 469.9 | 16 | 1 3/8 | 235 | 1 1/2 | M36 | 132 |
| 12 | 300 | 610 | 79.4 | 381 | 7 | 533.4 | 20 | 1 3/8 | 255 | 1 1/2 | M36 | 189 |
| 14 | 350 | 640 | 85.8 | 412.8 | 7 | 558.8 | 20 | 1 1/2 | 275 | 1 5/8 | M39 | 237 |
| 16 | 400 | 705 | 88.9 | 469.9 | 7 | 616 | 20 | 1 5/8 | 285 | 1 3/4 | M42 | 273 |
| 18 | 450 | 785 | 101.6 | 533.4 | 7 | 685.8 | 20 | 1 7/8 | 325 | 2 | M48 | 367 |
| 20 | 500 | 855 | 108 | 584.2 | 7 | 749.3 | 20 | 2 | 350 | 2 1/8 | M52 | 463 |
| 24 | 600 | 1040 | 139.7 | 692.2 | 7 | 901.7 | 20 | 2 1/2 | 440 | 2 5/8 | M64 | 875 |
Blind Class 1500 (FF, RF)

| NPS | DN | OD | Thk | RF Diam. | RF Height | PCD | Bolts# | Bolt Size UNC | RF Stud Length | Hole Size | Metric Stud | Weight in kg |
|---|---|---|---|---|---|---|---|---|---|---|---|---|
| A | B | C | D | E | ||||||||
| 1/2 | 15 | 120 | 22.3 | 34.9 | 7 | 82.6 | 4 | 3/4 | 110 | 7/8 | M20 | 1.8 |
| 3/4 | 20 | 130 | 25.4 | 42.9 | 7 | 88.9 | 4 | 3/4 | 115 | 7/8 | M20 | 2.7 |
| 1 | 25 | 150 | 28.6 | 50.8 | 7 | 101.6 | 4 | 7/8 | 125 | 1 | M24 | 3.7 |
| 1 1/4 | 32 | 160 | 28.6 | 63.5 | 7 | 111.1 | 4 | 7/8 | 125 | 1 | M24 | 4.1 |
| 1 1/2 | 40 | 180 | 31.8 | 73 | 7 | 123.8 | 4 | 1 | 140 | 1 1/8 | M27 | 5.9 |
| 2 | 50 | 215 | 38.1 | 92.1 | 7 | 165.1 | 8 | 7/8 | 145 | 1 | M24 | 10.1 |
| 2 1/2 | 65 | 245 | 41.3 | 104.8 | 7 | 190.5 | 8 | 1 | 160 | 1 1/8 | M27 | 15.9 |
| 3 | 80 | 265 | 47.7 | 127 | 7 | 203.2 | 8 | 1 1/8 | 180 | 1 1/4 | M30 | 21.8 |
| 4 | 100 | 310 | 54 | 157.2 | 7 | 241.3 | 8 | 1 1/4 | 195 | 1 3/8 | M33 | 33 |
| 5 | 125 | 375 | 73.1 | 185.7 | 7 | 292.1 | 8 | 1 1/2 | 250 | 1 5/8 | M39 | 64 |
| 6 | 150 | 395 | 82.6 | 215.9 | 7 | 317.5 | 12 | 1 3/8 | 260 | 1 1/2 | M36 | 75 |
| 8 | 200 | 485 | 92.1 | 269.9 | 7 | 393.7 | 12 | 1 5/8 | 290 | 1 3/4 | M42 | 136 |
| 10 | 250 | 585 | 108 | 323.8 | 7 | 482.6 | 12 | 1 7/8 | 335 | 2 | M48 | 232 |
| 12 | 300 | 675 | 123.9 | 381 | 7 | 571.5 | 16 | 2 | 375 | 2 1/8 | M52 | 314 |
| 14 | 350 | 750 | 133.4 | 412.8 | 7 | 635 | 16 | 2 1/4 | 405 | 2 3/8 | M56 | 443 |
| 16 | 400 | 825 | 146.1 | 469.9 | 7 | 704.8 | 16 | 2 1/2 | 445 | 2 5/8 | M64 | 591 |
| 18 | 450 | 915 | 162 | 533.4 | 7 | 774.7 | 16 | 2 3/4 | 495 | 2 7/8 | M72 | 795 |
| 20 | 500 | 985 | 177.8 | 584.2 | 7 | 831.8 | 16 | 3 | 540 | 3 1/8 | M76 | 1022 |
| 24 | 600 | 1170 | 203.2 | 692.2 | 7 | 990.6 | 16 | 3 1/2 | 615 | 3 5/8 | M90 | 1648 |
Blind Class 2500 (FF, RF)

| NPS | DB | OD | Thk | RF Diam. | RF Height | PCD | Bolts# | Bolt Size UNC | RF Stud Length | Hole Size | Metric Stud | Weight in kg |
|---|---|---|---|---|---|---|---|---|---|---|---|---|
| A | B | C | D | E | ||||||||
| 1/2 | 15 | 135 | 30.2 | 34.9 | 7 | 88.9 | 4 | 3/4 | 120 | 7/8 | M20 | 3.2 |
| 3/4 | 20 | 140 | 31.8 | 42.9 | 7 | 95.2 | 4 | 3/4 | 125 | 7/8 | M20 | 3.7 |
| 1 | 25 | 160 | 35 | 50.8 | 7 | 108 | 4 | 7/8 | 140 | 1 | M24 | 5 |
| 1 1/4 | 32 | 185 | 38.1 | 63.5 | 7 | 130.2 | 4 | 1 | 150 | 1 1/8 | M27 | 7.8 |
| 1 1/2 | 40 | 205 | 44.5 | 73 | 7 | 146 | 4 | 1 1/8 | 170 | 1 1/4 | M30 | 10.5 |
| 2 | 50 | 235 | 50.9 | 92.1 | 7 | 171.4 | 8 | 1 | 180 | 1 1/8 | M27 | 18 |
| 2 1/2 | 65 | 265 | 57.2 | 104.8 | 7 | 196.8 | 8 | 1 1/8 | 195 | 1 1/4 | M30 | 25.5 |
| 3 | 80 | 305 | 66.7 | 127 | 7 | 228.6 | 8 | 1 1/4 | 220 | 1 3/8 | M33 | 39 |
| 4 | 100 | 355 | 76.2 | 157.2 | 7 | 273 | 8 | 1 1/2 | 255 | 1 5/8 | M39 | 61.5 |
| 5 | 125 | 420 | 92.1 | 185.7 | 7 | 323.8 | 8 | 1 3/4 | 300 | 1 7/8 | M45 | 102 |
| 6 | 150 | 485 | 108 | 215.9 | 7 | 368.3 | 8 | 2 | 345 | 2 1/8 | M52 | 157 |
| 8 | 200 | 550 | 127 | 269.9 | 7 | 438.2 | 12 | 2 | 380 | 2 1/8 | M52 | 241 |
| 10 | 250 | 675 | 165.1 | 323.8 | 7 | 539.8 | 12 | 2 1/2 | 490 | 2 5/8 | M64 | 470 |
| 12 | 300 | 760 | 184.2 | 381 | 7 | 619.1 | 12 | 2 3/4 | 540 | 2 7/8 | M72 | 575 |
Dimensional Tolerance Blind Flange
blind flange tolerance asme b16.5
| BLIND FLANGE DIMENSIONAL TOLERANCE ASME B16.5 (INCHES) |
|---|
| Dimension |
| A |
- When O.D. is over 24″: ±1/8″ (3.2mm) | | D | Inside Diameter | - Threaded: within limits of boring gauge
- Lap Joint, Slip-on, Socket 10″ and smaller: ±1/32″ (0.8mm), 0″
- 12″ and larger: -1/16″ (1.6mm), 0″ | | B | Diameter of contact face | - 1/16″ raised face: ±1/32″ (0.8mm)
- 1/4″ Raised Face, Tongue & Groove (male & female): ±1/64″ (0.4mm) | | E, F, S | Diameter of bore | - Threaded (S): within limits of boring gauge
- Lap Joint (F), Slip-on (E), Socket (E) 10″ and smaller: ±1/32″ (0.8mm), 0″
- 12″ and larger: -1/16″ (1.6mm), 0″ | | P | Drilling | - Bolt circle: ±1/16″ (1.6mm)
- Bolt hole spacing: ±1/32″ (0.8mm)
- Eccentricity of bolt circle for facing 2 1/2″ and smaller ±1/32″ (0.8mm) max.
- 3″ and larger ±1/16″ (1.6mm) max. | | C | Thickness | - 18″ and smaller: ±1/8″ (3.2mm), -0″
- 20″ and larger: ±3/16″ (4.8mm), -0″ | | L, M | Length of hub | - 18″ and smaller: ±1/8″ (3.2mm), ±1/32″ (0.8mm)
- 20″ and larger: ±3/16″ (4.8mm), ±1/16″ (1.6mm) |
Blind Flange Weights
Blind Flange Weight in Kgs.
The table shows the ASME B16.5 blind flange weights in Kgs. by Flange NPS and Class (carbon/alloy steel materials; for higher grades, consider adjusting weight using the delta-specific weight carbon/other grades)
| NPS | Class 150 | Class 300 | Class 400 | Class 600 | Class 900 | Class 1500 | Class 2500 |
|---|---|---|---|---|---|---|---|
| 1/2 | 0.9 | 0.9 | 0.9 | 1.4 | 1.8 | 1.8 | 3.6 |
| 3/4 | 0.9 | 1.4 | 1.4 | 1.8 | 2.7 | 2.7 | 4.1 |
| 1 | 0.9 | 1.8 | 1.8 | 1.8 | 4.1 | 4.1 | 5.9 |
| 1¼ | 1.4 | 2.7 | 2.7 | 2.7 | 4.5 | 4.5 | 9 |
| 1½ | 1.8 | 3.2 | 3.6 | 3.6 | 6.3 | 6.3 | 12.6 |
| 2 | 2.3 | 3.6 | 4.5 | 4.5 | 11.3 | 11.3 | 18.9 |
| 2½ | 3.2 | 5.4 | 6.8 | 6.8 | 14.4 | 15.8 | 23.4 |
| 3 | 4.1 | 7.2 | 9 | 9 | 15.8 | 21.6 | 42.3 |
| 3½ | 5.9 | 9.5 | 13 | 13 | |||
| 4 | 7.7 | 12.6 | 14.9 | 18.5 | 24.3 | 32.9 | 65.7 |
| 5 | 9 | 16.7 | 19.8 | 30.6 | 39.2 | 63 | 109.8 |
| 6 | 12.2 | 22.5 | 27.5 | 38.7 | 51.8 | 72 | 170.1 |
| 8 | 21.2 | 36.5 | 45 | 63 | 90 | 135.9 | 259.2 |
| 10 | 31.5 | 55.8 | 69.8 | 103 | 130.5 | 229.5 | 480.6 |
| 12 | 55.4 | 83.3 | 101.7 | 132.8 | 186.8 | 348.8 | 723.6 |
| 14 | 63 | 112.5 | 139.5 | 170.1 | 234 | 438.8 | |
| 16 | 81 | 141.8 | 179.1 | 237.2 | 278.6 | 585 | |
| 18 | 99 | 186.3 | 225.9 | 299.3 | 396 | 787.5 | |
| 20 | 128.3 | 231.8 | 279.5 | 384.8 | 498.2 | 1001 | |
| 22 | 159.8 | 288 | 324 | 450 | |||
| 24 | 193.5 | 360 | 421.2 | 562.5 | 944.6 | 1631 |
Blind Flange Weight in Lbs.
The table shows the ASME B16.5 blind flange weights in Lbs. by Flange NPS and Class (carbon/alloy steel materials; for higher grades, consider adjusting weight using the delta-specific weight carbon/other grades)
| CLASS 150 | Nominal Pipe Size | Blind Flange Weight in Lbs./unit |
|---|---|---|
| ½ | 2 | |
| ¾ | 2 | |
| 1 | 2 | |
| 1¼ | 3 | |
| 1½ | 4 | |
| 2 | 5 | |
| 2½ | 7 | |
| 3 | 9 | |
| 3½ | 13 | |
| 4 | 17 | |
| 5 | 20 | |
| 6 | 27 | |
| 8 | 47 | |
| 10 | 70 | |
| 12 | 123 | |
| 14 | 140 | |
| 16 | 180 | |
| 18 | 220 | |
| 20 | 285 | |
| 22 | 355 | |
| 24 | 430 | |
| CLASS 300 | Nominal Pipe Size | Blind Flange Weight in Lbs./unit |
| ½ | 2 | |
| ¾ | 3 | |
| 1 | 4 | |
| 1¼ | 6 | |
| 1½ | 7 | |
| 2 | 8 | |
| 2½ | 12 | |
| 3 | 16 | |
| 3½ | 21 | |
| 4 | 28 | |
| 5 | 37 | |
| 6 | 50 | |
| 8 | 81 | |
| 10 | 124 | |
| 12 | 185 | |
| 14 | 250 | |
| 16 | 315 | |
| 18 | 414 | |
| 20 | 515 | |
| 22 | 640 | |
| 24 | 800 | |
| CLASS 400 | Nominal Pipe Size | Blind Flange Weight in Lbs./unit |
| ½ | 2 | |
| ¾ | 3 | |
| 1 | 4 | |
| 1¼ | 6 | |
| 1½ | 8 | |
| 2 | 10 | |
| 2½ | 15 | |
| 3 | 20 | |
| 3½ | 29 | |
| 4 | 33 | |
| 5 | 44 | |
| 6 | 61 | |
| 8 | 100 | |
| 10 | 155 | |
| 12 | 226 | |
| 14 | 310 | |
| 16 | 398 | |
| 18 | 502 | |
| 20 | 621 | |
| 22 | 720 | |
| 24 | 936 | |
| CLASS 600 | Nominal Pipe Size | Blind Flange Weight in Lbs./unit |
| ½ | 3 | |
| ¾ | 4 | |
| 1 | 4 | |
| 1¼ | 6 | |
| 1½ | 8 | |
| 2 | 10 | |
| 2½ | 15 | |
| 3 | 20 | |
| 3½ | 29 | |
| 4 | 41 | |
| 5 | 68 | |
| 6 | 86 | |
| 8 | 140 | |
| 10 | 231 | |
| 12 | 295 | |
| 14 | 378 | |
| 16 | 527 | |
| 18 | 665 | |
| 20 | 855 | |
| 22 | 1000 | |
| 24 | 1250 | |
| CLASS 900 | Nominal Pipe Size | Blind Flange Weight in Lbs./unit |
| ½ | 4 | |
| ¾ | 6 | |
| 1 | 9 | |
| 1¼ | 10 | |
| 1½ | 14 | |
| 2 | 25 | |
| 2½ | 32 | |
| 3 | 35 | |
| 4 | 54 | |
| 5 | 87 | |
| 6 | 115 | |
| 8 | 200 | |
| 10 | 290 | |
| 12 | 415 | |
| 14 | 520 | |
| 16 | 619 | |
| 18 | 880 | |
| 20 | 1107 | |
| 24 | 2099 | |
| CLASS 1500 | Nominal Pipe Size | Blind Flange Weight in Lbs./unit |
| ½ | 4 | |
| ¾ | 6 | |
| 1 | 9 | |
| 1¼ | 10 | |
| 1½ | 14 | |
| 2 | 25 | |
| 2½ | 35 | |
| 3 | 48 | |
| 4 | 73 | |
| 5 | 140 | |
| 6 | 160 | |
| 8 | 302 | |
| 10 | 510 | |
| 12 | 775 | |
| 14 | 975 | |
| 16 | 1300 | |
| 18 | 1750 | |
| 20 | 2225 | |
| 24 | 3625 | |
| CLASS 2500 | Nominal Pipe Size | Blind Flange Weight in Lbs./unit |
| ½ | 7 | |
| ¾ | 10 | |
| 1 | 12 | |
| 1¼ | 18 | |
| 1½ | 25 | |
| 2 | 39 | |
| 2½ | 56 | |
| 3 | 86 | |
| 4 | 133 | |
| 5 | 223 | |
| 6 | 345 | |
| 8 | 533 | |
| 10 | 1025 | |
| 12 | 1464 |
Leave a Comment
Have a question or feedback? Send us a message.